Rénovation complète d’une maison avec récupération d’un abri extérieur et création d’une pièce de vie traversante à Aix-en-Provence
La rénovation de cette maison située dans le sud de la France, à proximité d’Aix-en-Provence et Marseille, avait un objectif clair : améliorer la qualité de vie des occupants en optimisant les volumes existants et en créant une véritable connexion entre l’intérieur et le jardin.
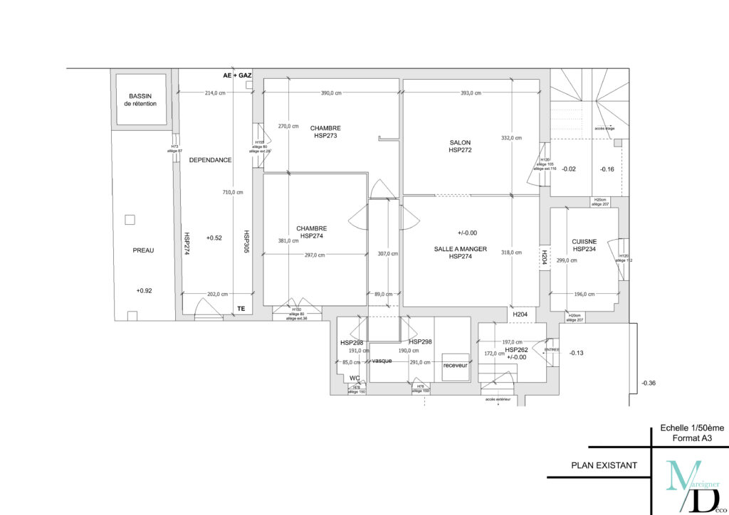
Initialement, la maison présentait une configuration classique mais peu qualitative : la pièce de vie et la cuisine donnaient uniquement sur la rue, tandis que le jardin, situé à l’arrière, restait totalement invisible depuis les espaces principaux.
Le potentiel était pourtant réel. La présence d’un ancien abri extérieur mitoyen offrait une opportunité stratégique pour augmenter la surface de plancher et transformer radicalement la perception de l’espace.
VOICI LES PHOTOS AVANT et PENDANT la phase travaux
Une extension intégrée à l’existant grâce à la récupération d’un abri extérieur
L’intervention a consisté à récupérer le volume de cet abri existant afin de l’intégrer pleinement à la maison. Cette transformation a nécessité le dépôt d’une déclaration préalable de travaux pour valider le changement de destination et l’augmentation de la surface de plancher.
Ce type d’intervention présente de nombreux avantages :
optimisation du bâti existant sans artificialisation supplémentaire du terrain
augmentation de la surface habitable
valorisation immobilière du bien
amélioration significative de la qualité spatiale
Sur le plan technique, cette phase a impliqué :
la démolition des cloisons existantes
l’ouverture de murs porteurs avec renfort structurel
la continuité des niveaux de sol
l’intégration thermique et fonctionnelle du nouveau volume
Le nouvel espace récupéré est ainsi devenu une extension naturelle de la pièce de vie.
Création d’une maison traversante ouverte sur le jardin
L’un des enjeux majeurs du projet était de transformer une maison tournée vers la rue en une maison ouverte sur son jardin.
La nouvelle organisation repose désormais sur un principe simple et efficace : la traversée des espaces.
La cuisine, entièrement réaménagée et agrandie, conserve sa position côté rue mais bénéficie désormais d’une meilleure ergonomie et de volumes optimisés.
Elle s’ouvre directement sur la nouvelle pièce de vie créée dans l’ancien abri, qui offre désormais une vue directe sur le jardin grâce à de larges ouvertures vitrées.
Cette transformation permet :
un apport de lumière naturelle significatif
une meilleure ventilation naturelle
une perception élargie de l’espace
une connexion directe avec l’extérieur
La maison gagne ainsi en confort, en fonctionnalité et en qualité architecturale.
Une transformation complète des volumes intérieurs
Avant les travaux, les espaces étaient cloisonnés, peu lumineux et déconnectés les uns des autres.
Le projet architectural a permis de :
décloisonner les espaces
agrandir la cuisine pour améliorer son usage quotidien
créer une véritable pièce de vie tournée vers le jardin
unifier les matériaux et les niveaux
moderniser l’ensemble de la maison
L’intervention structurelle et spatiale a permis de révéler le potentiel réel du bien.
Une valorisation durable du bien immobilier
Au-delà de l’amélioration immédiate du confort, ce type de rénovation constitue une réelle valorisation patrimoniale.
La récupération d’un volume existant pour l’intégrer à la surface habitable est l’une des stratégies les plus efficaces pour augmenter la valeur d’un bien, tout en conservant une cohérence architecturale.
Cette approche permet également de limiter les coûts et les contraintes administratives par rapport à une extension totalement nouvelle.
Architecte d’intérieur à Aix-en-Provence et Marseille : accompagnement complet de votre projet
En tant qu’architecte d’intérieur spécialisé dans la rénovation et l’optimisation des volumes existants dans les Bouches-du-Rhône, j’accompagne mes clients à chaque étape :
analyse du potentiel existant
conception architecturale
optimisation des surfaces
dépôt des autorisations administratives (déclaration préalable, permis de construire)
suivi et coordination du projet
Chaque projet est conçu sur mesure, en tenant compte des contraintes techniques, réglementaires et des besoins de ses occupants.
Comment fonctionne les services d’un architecte d’intérieur ? (devis gratuit)
Vous avez un projet de rénovation ou d’extension dans le sud de la France ?
Que votre bien soit situé à Aix-en-Provence, Marseille ou dans les environs, il existe souvent un potentiel inexploité permettant d’améliorer significativement votre cadre de vie.
La récupération de volumes existants, la modification des circulations et l’ouverture sur l’extérieur peuvent transformer radicalement votre habitation.
Vous pouvez découvrir d’autres projets de rénovation réalisés dans la région ou me contacter pour échanger sur votre projet.

Incroyable réalisation ! Quand certains pensent qu’on ne peut rien améliorer, d’autres se lancent. Et avec l’aide de Monsieur Mareigner il n’y a pas à hésiter.
Je ne vais pas tarder à le contacter pour ma maison.