Introduction
Pendant longtemps, la piscine intérieure a symbolisé un certain art de vivre. Aujourd’hui, dans beaucoup de maisons, elle est devenue un espace à part, peu utilisé, coûteux à entretenir et parfois même problématique. C’est exactement la situation de cette maison individuelle, dont l’extension abritait une piscine intérieure d’origine, laissée à l’abandon depuis plusieurs années.
En tant qu’architecte d’intérieur basé dans la région d’Aix-en-Provence, j’accompagne régulièrement des projets de transformation atypiques, comme la reconversion de piscines intérieures en espaces habitables.
En 2020, la propriétaire envisage une solution radicale : condamner la piscine et créer un appartement indépendant destiné à la location. Le raisonnement est logique. Pourtant, en découvrant les lieux, une autre lecture du projet s’impose. Derrière cette piscine inutilisée se cache un volume exceptionnel : 35 m² excavés, une belle hauteur sous plafond, une charpente bois remarquable et une relation directe avec l’extérieur.
Plutôt que de supprimer cet espace, le projet a consisté à le transformer en profondeur. La piscine devient alors le point de départ d’une réflexion architecturale plus ambitieuse : créer un loft en duplex, lumineux, fluide, et parfaitement intégré à l’existant. Un projet atypique, né d’un changement de regard sur un espace considéré au départ comme une contrainte.
Je fais régulièrement appel à des entreprises tout corps d’état pour ce genre de projet. L’exécution doit être parfaite et minutieuse , comme avec ACR Provence par exemple.
Le problème des piscines intérieures inutilisées
Dans de nombreux projets de rénovation, la piscine intérieure pose rapidement question. Souvent pensée à une époque où les usages étaient différents, elle ne correspond plus aux modes de vie actuels, en particulier lorsqu’une piscine extérieure existe déjà.
Dans ce cas précis, plusieurs problématiques se cumulaient :
un entretien lourd et coûteux pour un usage quasi inexistant
des remontées d’humidité, typiques des bassins enterrés non utilisés
un espace enclavé, difficile à reconvertir sans réflexion globale
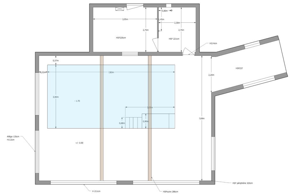
La réalité technique du lieu s’est révélée dès le début du chantier. Lors de la dépose de l’escalier existant dans la piscine, une poche d’eau sous pression est remontée, mettant en évidence une fissure dans la structure. Une intervention a été nécessaire pour consolider et colmater durablement le bassin, afin de garantir la pérennité des futurs espaces, notamment la chambre créée en souplex.
Ce type de situation est loin d’être isolé. Une piscine intérieure abandonnée continue d’avoir un impact sur le bâti, même lorsqu’elle n’est plus utilisée. La condamner sans réflexion revient souvent à perdre une surface exploitable et à passer à côté d’un potentiel architectural important.
Pourquoi transformer une piscine intérieure en loft
Face à ce constat, l’objectif n’était pas simplement de supprimer la piscine, mais de tirer parti de la profondeur et des volumes existants. Le bassin représentait une réserve d’espace rare : déjà construite, déjà intégrée à la maison, et offrant des hauteurs difficiles à recréer autrement.
La proposition architecturale a consisté à :
créer un plancher au-dessus de l’ancien bassin, positionné à une hauteur étudiée
conserver une hauteur sous plafond confortable dans les espaces inférieurs
exploiter la verticalité pour organiser le lieu en duplex
Ce choix a permis d’éviter une transformation banale. Là où un appartement classique aurait nivelé les volumes, le projet de loft a joué avec les différences de niveaux, la lumière et les perspectives. L’espace est devenu lisible, fluide, et surtout cohérent avec l’architecture existante.
Les contraintes techniques à anticiper
Transformer une piscine intérieure en espace habitable ne s’improvise pas. Le projet a nécessité une analyse précise des contraintes techniques, dès les premières phases de conception.
Structure et ancien bassin
Le bassin existant devait être sécurisé et stabilisé avant toute transformation. Les fissures détectées ont été traitées afin d’éliminer tout risque de remontée d’humidité à long terme. Le nouveau plancher a été conçu pour reprendre les charges, tout en respectant les hauteurs nécessaires aux espaces inférieurs.
Humidité et ventilation
L’ancienne piscine générait un taux d’humidité important. Le projet a intégré une gestion adaptée de la ventilation et des matériaux, afin de créer un environnement sain, compatible avec un usage quotidien.
Lumière naturelle
Contrairement à certaines piscines intérieures enclavées, celle-ci bénéficiait de grandes baies vitrées donnant sur une terrasse et un champ d’oliviers. Le projet a renforcé cet apport lumineux :
création d’une dalle vitrée au niveau du plancher du duplex
ouverture intérieure contrôlée entre le salon et la chambre en souplex
Ces dispositifs permettent à la lumière de circuler verticalement, jusque dans les espaces les plus bas.
Surface habitable
Sans agrandir l’existant, le projet a permis de gagner de la surface de plancher habitable, en exploitant des hauteurs supérieures à 1,80 m et en requalifiant des volumes auparavant non comptabilisés.
Du bassin au duplex : organisation des espaces
L’aménagement du loft repose sur une lecture claire des niveaux.
Au niveau principal, la pièce de vie regroupe salon, salle à manger et cuisine, largement ouverte sur l’extérieur. Ce niveau dialogue directement avec la terrasse, renforçant la sensation d’espace.
Depuis ce même palier :
un escalier descend vers le souplex, où se trouvent une chambre et une cave
un second escalier monte vers la chambre en duplex, créée sur le plancher réalisé au-dessus de l’ancienne piscine
Une partie du bassin a volontairement été conservée et transformée en cave, située sous la cuisine. La mosaïque d’origine a été laissée visible, comme un rappel discret de l’histoire du lieu. Ce choix permet de ne pas effacer totalement la piscine, mais de l’intégrer autrement au projet.
Résultat : un espace de vie totalement réinventé
À l’issue du projet, l’ancienne piscine intérieure n’est plus un espace contraignant. Elle est devenue le cœur d’un loft en duplex, lumineux, fonctionnel et singulier. Le changement d’usage est radical : la cliente, initialement tournée vers un projet locatif, a finalement choisi d’y vivre, et de louer sa maison principale.
Cette transformation démontre qu’un espace considéré comme obsolète peut devenir un véritable atout, à condition d’en comprendre le potentiel et d’oser des choix architecturaux forts. Ici, sans extension, sans artificialisation supplémentaire, le bâti existant a été valorisé, tant sur le plan fonctionnel que spatial.
Conclusion
Ce type de projet illustre mon approche d’architecte d’intérieur, centrée sur la valorisation de l’existant et l’optimisation des volumes, notamment dans la région d’Aix-en-Provence et ses alentours.
Transformer une piscine intérieure en loft demande bien plus qu’une simple rénovation. C’est un travail d’analyse, de projection et de compréhension fine des volumes existants. Chaque projet est unique, mais ce type de transformation montre qu’il est souvent possible de faire plus avec l’existant, en changeant simplement de regard.
Vous pourrez également retrouver d’avantages de réalisation sur ma page dédiée.

Incroyable transformation ! Merci pour le partage cela pourra donner des idées à certains. N’hésitez pas à faire le même partage dans le cas d’une piscine extérieure